DEVELOPMENT OPPORTUNITY - 24/02869/FULL - Watermans Lane, Tonbridge, TN12 6NDGuide Price £1,100,000 - £1,200,000
On MarketBracketts Tonbridge - 01732 350503Brac13593
- Development Opportunity
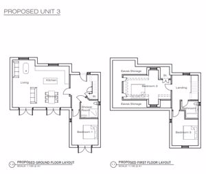
- Demolition of Existing Property
- Erection of Three Dwellings & Associated Hard and Soft Landscaping
- 24/02869/FULL - Decision Issued May 2025
- Plot Has a Versatile Detached Two/Three Bedroom Bungalow
- Sought After Location
- Brenchley / Paddock Wood Borders
- Viewing Highly Recommended
- Private Driveway - Electric Gates
** GUIDE PRICE £1,100,000 - £1,200,000 **
A unique opportunity to purchase a wonderful plot of land with planning permission Planning Application: 24/02869/FULL in an enviable rural position near the popular village of Brenchley, Matfield and Paddock Wood.
Watermans Lane is a sought-after road on the fringes of Brenchley village & Paddock Wood. This particular plot has a versatile detached two/three double bedroom bungalow benefitting from ample off road parking with two driveways, timber outbuildings and a large southerly aspect wraparound garden overlooking farmland with electric security gates leading to private driveway. Demolition of existing property and erection of three dwellings and associated hard and soft landscaping.
Paddock Wood has a Waitrose supermarket conveniently located near the mainline station and several other shops, whilst Tonbridge & Tunbridge Wells offers a wide choice of amenities including two theatres, a multiplex cinema, health clubs, restaurants, cafes, bars and hotels. Neighbouring villages of Brenchley & Matfield offers, doctors' surgery and dispensary, along with a fine church, primary school, local pubs and a village club. There are many highly regarded schools in the area, both state and private. An excellent primary school, Brenchley and Matfiled Primary, is a few minutes up the road.
There are many highly regarded state and private schools in Tonbridge and Tunbridge Wells and the surrounding area. Secondary options also include several highly sought-after grammar schools, including Tunbridge Wells Girls Grammar School, Tunbridge Wells Boys Grammar, Tonbridge Grammar School for Girls, Tonbridge School, Weald of Kent Grammar, Judd and Skinners.
Paddock Wood station has mainline services to London Charing Cross (via London Bridge and Waterloo East) and to London Cannon Street, services from 52 minutes. About four miles away is the A21 dual-carriageway which links directly to the M25 London orbital motorway and thereby a national motorway network, Gatwick and Heathrow airports
Expert Agent supplies powerful web based estate agency software, estate agent web
site design and estate agent marketing systems. Our estate agent software is suitable
for both estate agents and letting agents. It is totally web based, hosted by us
and available, like all of our products, for an affordable monthly subscription.
Expert Agent is the estate agency software product of choice in nearly 1100 residential,
commercial and lettings businesses across the UK and Europe.
For more information about our
Estate Agent Software please click the link.