Red Deer Country Ltd
3 Fore Street
Williton
Taunton
Somerset
TA4 4PX
01984 631153
Frog Street, Bampton£400,000
Main Image
Plot- click for photo galleryPhoto- click for photo galleryPhoto- click for photo galleryPhoto- click for photo galleryPhoto- click for photo galleryPhoto- click for photo galleryPhoto- click for photo gallerySite location plan- click for photo galleryPhoto 17- click for photo galleryPlot 1 Elevations- click for photo galleryPlot 1 Floorplans- click for photo galleryPlot 2 Elevations- click for photo galleryPlot 2 Floorplans- click for photo galleryGarage Elevations- click for photo galleryGarage Plans- click for photo gallery
On MarketRed Deer Country Ltd - 01984 63115300001703
A fantastic opportunity to acquire a plot extending to 0.83 acre with planning permission for 2no. detached dwellings in the popular town of Bampton, on the Devon/Somerset border.

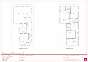
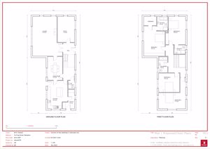
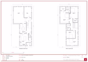
Plot 1, extending to 557 square meters, has planning permission for a detached two storey 4 bedroom house and a detached garage.
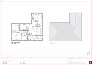
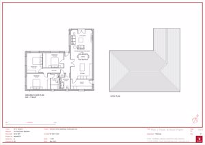
Plot 2, extending to 365.7 square meters, has planning permission for a detached 3 bedroom bungalow.

To the rear of plot 1 there is an orchard, extending to 0.61 acres, which offers considerable potential for further development (subject to planning and consents) or will add value to plot 1 in the form of a paddock.

Viewings strictly by appointment only and accompanied by the agent.

The property is situated in the small town of Bampton which has a lot to offer with popular pubs and restaurants, chemist, butcher, baker, greengrocer's, doctors practice, primary school, post office and a lovely c.15th century church. The larger market town of Tiverton lies 7 miles to the south with dual carriage way access to Junction 27 of the M5 motorway and Tiverton Parkway mainline station which provides regular intercity services to London (Paddington 2 hours). The whole area is well known for its outstanding natural beauty with Exmoor National Park just 3.5 miles to the north and the beaches of the beautiful North Devon coast are only a 40 minute drive away.
Website Design and Estate Agency Software By Expert Agent
Expert Agent Estate Agency Software