Robert Bell & Company - Horncastle
Old Bank Chambers
Horncastle
Lincolnshire
LN9 5HY
01507 522222
The Old Post Office, South Street, Scamblesby, Nr LouthOffers in the Region Of £315,000
Main Image
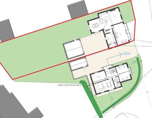
The Old Post Office- click for photo galleryKitchen- click for photo galleryLiving Room- click for photo galleryLiving Room- click for photo galleryReception room- click for photo galleryBedroom- click for photo galleryViews- click for photo galleryShower Room - click for photo galleryBedroom- click for photo galleryBedroom- click for photo galleryBedroom- click for photo galleryEntrance Hallway- click for photo galleryRear Garden- click for photo galleryProposed Elevations- click for photo galleryProposed Elevations- click for photo galleryProposed Floorplan- click for photo galleryProposed Block Plan- click for photo gallery
On MarketRobert Bell & Company - Horncastle - 01507 522222BH00018944
The Old Post Office is an exciting opportunity to acquire a substantial four-bedroom family home in the beautiful Lincolnshire Wolds village of Scamblesby.

Having undergone a scheme of renovations and updates by the current vendors, prospective purchasers now have the chance to complete works to suit their requirements, not least with planning permission granted for a two-storey extension to the rear and double garage (see East Lindsey District Planning, REF: N/149/01672/20).

The property benefits from a new Air Source Heating system, already installed, as part of the ongoing updates and enhancements; a dozen solar panels, and is fully insulated with underfloor heating system installed throughout the ground floor – with the exception of the former shop area for which the materials are already purchased and at the property. The Old Post Office is predominately double glazed, with the single glazed windows in the kitchen set to be replaced during the extension works. The original shop front is also single glazed. As such, the property boasts an EPC: C rating.

Currently, accommodation comprises an entrance/boot room, kitchen with a hybrid utility/pantry space, and two reception rooms to the ground floor; with four comfortable double bedrooms and two bathroom spaces to the first. The property is complete with off-road parking for multiple vehicles, and a generous rear garden space to be established.

Scamblesby lies within the designated National Landscape area of the Lincolnshire Wolds, with the well-serviced market towns of Louth and Horncastle in close proximity. The village is home to a Primary School; while the aforementioned towns provide a full range of education options and further services and amenities.
 

Website Design and Estate Agency Software By Expert Agent
Expert Agent Estate Agency Software