Longfleet Road, PooleOffers in Excess of £675,000
Sold STCEnfields Poole - 01202 93355500000194
- PLANNING APPROVED TO BE MADE INTO A 15 BED HMO
- Property is currently vacant
- Corner Plot
- VIDEO TOUR
- Potential to achieve over £150,000 per annum
- Moments away from Poole Hospital
- Space to create parking for multiple cars
- No onward chain
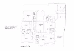
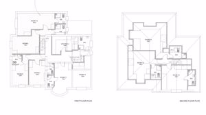
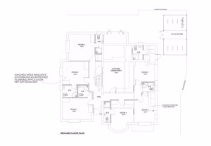
**PLOT**A RARE opportunity to purchase a SEVEN-bedroom detached house with planning permission granted to be converted into a 15 BEDROOM HMO!
APP/23/01351/F - Change of use from a C3 Dwelling to a Sui Generis 15 bed Co Living HMO including a two storey extension, with dormers in roof space.
This property is set on a large corner plot and is ready to be developed into a show stopping house of multiple occupancy that has the capability to achieve over £170,000 a year.
Approx monthly rental when complete: £14,425
Roughly monthly cashflow after all costs: Over £10,000
Travel & Commuting:
- Poole Hospital, 0.2 miles, 3-minute walk.
- Poole Train Station, 0.7 miles, 15-minute walk.
- Poole Bus & Coach Station, 0.6 miles, 14-minute walk.
- ASDA Superstore, 1.0 mile, 20-minute walk.
- Poole Park, 0.3 miles, 5-minute walk.
- RNLI College, 1.1 miles, 24-minute walk.
- Bournemouth & Poole College, 0.5 miles, 11-minute walk.
Whether you’re an existing investor, landlord or looking to start a business in the property sector, our skilled agents will advise and guide you with their expertise.
Opportunities like this do not come around often, book a viewing whilst you still can by calling our friendly team in the Poole office on 01202 933 555
Expert Agent supplies powerful web based estate agency software, estate agent web
site design and estate agent marketing systems. Our estate agent software is suitable
for both estate agents and letting agents. It is totally web based, hosted by us
and available, like all of our products, for an affordable monthly subscription.
Expert Agent is the estate agency software product of choice in nearly 1100 residential,
commercial and lettings businesses across the UK and Europe.
For more information about our
Estate Agent Software please click the link.