Wistaston Road, Crewe£375,000
Sold STCKeates - 01782 84708300004391
- Building Plot for Sale In Crewe
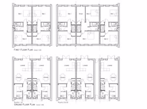
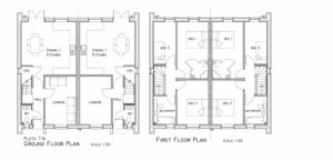
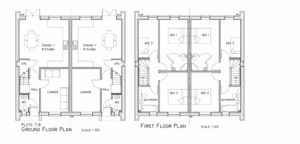
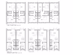
 - Planning Permission for 7 Properties
 - Application No: 20/1871N
 - 5 Two Bed & 2 Three Bed Houses
 - All Enquiries andrew@keates.uk.com
 - Viewings by appointment only
 
Development opportunity in Crewe. Building Plot with permission to develop into seven properties. Located on  Wistaston Road close to Crewe Town Centre the development site is a former Car Rental yard and offices with planning permission to erect two three bedroom semi's, a pair of two bed semi's and a run of three two bed mews houses. Planning Reference Application No: 20/1871N
- Situation
Situated on Wistaston Road in Crewe, CW2. The site is located close to the Town Centre where all amenities can be found including Cinema's,  Retail Parks and within easy reach of Valley Brook Park.
 - Location
Crewe is located in Cheshire East within easy reach of Junction 16 of the M6 with many large distribution warehouses the Town is considered a distribution hub. As a railway town Crewe is within easy rail access to Manchester and Liverpool.
 - Development
Planning permission has been granted for the erection of two three bed semi detached properties, a paid of two bed semi's and a run of three two bed mews houses.
 - Planning 
To View the planning permission visit:
https://www.cheshireeast.gov.uk/planning/view_a_planning_application/view_a_planning_application.aspx
Ref:20/1871N
Or by postcode CW2 7RB
a full planning pack is available on request.
 - Site
The site has existing buildings which will require demolition post purchase.
 - Legal Matters
Buyers will be required to prove identity for Anti Money Laundering. Each party to be responsible for their own legal costs.
 - Viewing
Viewing of the site is available from the public highway. Should a site visit be needed then please contact the agent.
 - Sale Process
Expressions of interest are invited by email.
 - All Enquiries
Andrew Johnson MRICS
andrew@keates.uk.com
 
 
    
        
            
     
    
        Expert Agent supplies powerful web based estate agency software, estate agent web
        site design and estate agent marketing systems. Our estate agent software is suitable
        for both estate agents and letting agents. It is totally web based, hosted by us
        and available, like all of our products, for an affordable monthly subscription.
        Expert Agent is the estate agency software product of choice in nearly 1100 residential,
        commercial and lettings businesses across the UK and Europe.
        
        For more information about our 
            Estate Agent Software please click the link.