The Orangery, St Gabriel's Park, Woolton, L25£650,000
On MarketMove Residential - Mossley Hill - 0151 734 672200020209
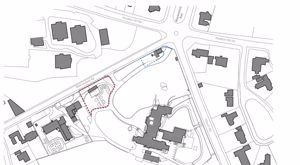
- .257 Acre Plot of Land for Sale
- Highly Desirable & Affluent Location
- Tenure - Freehold
- Planning Granted for Detached Dwelling
- Fantastic Scope for Development
- Application Reference - 22L/0533 & 22F/0463
An exciting and rare opportunity has arisen for those seeking a spacious residential plot situated in the highly desirable and affluent suburb of Woolton, L25. Encompassing a generous plot of .257 acre, the land forms part of the prestigious St. Gabriel’s site on Beaconsfield Road, an address renowned for its idyllic charm, leafy ambiance and historical significance.
The Orangery plot benefits from the advantage of already approved planning permission, allowing the construction of a new and distinctive detached dwelling. The approved plans offer a glimpse into the potential of this plot, providing a canvas for creativity and customization to match the buyer's vision and lifestyle preferences
Expert Agent supplies powerful web based estate agency software, estate agent web
site design and estate agent marketing systems. Our estate agent software is suitable
for both estate agents and letting agents. It is totally web based, hosted by us
and available, like all of our products, for an affordable monthly subscription.
Expert Agent is the estate agency software product of choice in nearly 1100 residential,
commercial and lettings businesses across the UK and Europe.
For more information about our
Estate Agent Software please click the link.