Greenbank Gardens, BathGuide Price £40,000
On MarketKit Johnson Residential - 01225 444447KJ1153
- Plot of Land
- Ideal Development Opportunity (subject to consents)
- Near Royal United Hospital
- Freehold
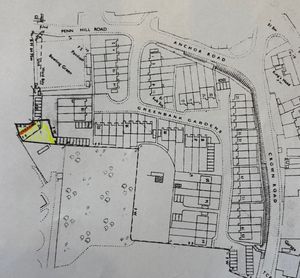
A small plot of land to the South West of Greenbank Gardens, a Cul-de-Sac off Anchor Road in Weston, Bath, between Weston Bowling Club and the Royal United Hospital. The plot had planning permission for two semi detached 3 bedroom houses granted in 1990, but now lapsed. Ideal for similar or perhaps garages/workshops (subject to consents). Freehold. Guide £40,000. Ideal development opportunity. No specific planning granted at present.
Expert Agent supplies powerful web based estate agency software, estate agent web
site design and estate agent marketing systems. Our estate agent software is suitable
for both estate agents and letting agents. It is totally web based, hosted by us
and available, like all of our products, for an affordable monthly subscription.
Expert Agent is the estate agency software product of choice in nearly 1100 residential,
commercial and lettings businesses across the UK and Europe.
For more information about our
Estate Agent Software please click the link.