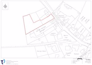
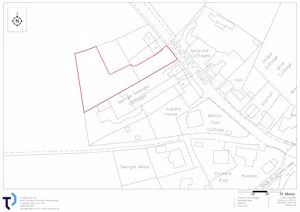
Brenchley Road, Matfield£250,000
On MarketBarnes Kingsnorth - Pembury - 01892 822880P1002
- BUILDING PLOT FOR SALE
- Planning permission granted
- Open double garage
- Off-road parking
- Outskirts of Matifeld Village
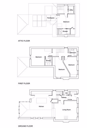
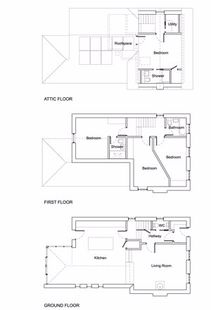
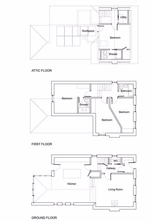
- Four bedroom / Three Bathroom
- Gardens and adjoining Meadow
- Planning for 1829.86 sq ft house
RARE OPPORTUNITY – BUILDING PLOT WITH PLANNING PERMISSION
Barnes Kingsnorth Estate Agents are delighted to offer this exceptional opportunity to acquire a parcel of land with planning permission granted for a substantial four-bedroom detached residence, ideally positioned on the outskirts of the sought-after village of Matfield.
Designed to be arranged over three floors, this impressive family home will provide well-proportioned and versatile accommodation, including an open-plan kitchen/dining room, a separate living room, four bedrooms, and three bathrooms. Externally, the property will benefit from garaging, off-road parking, a private garden, and an adjoining meadow, creating an enviable semi-rural setting.
Full planning details are available via the Tunbridge Wells Planning Portal under reference 24/01670/FULL.
For further information, please contact our Pembury office on 01892 822880.
Expert Agent supplies powerful web based estate agency software, estate agent web
site design and estate agent marketing systems. Our estate agent software is suitable
for both estate agents and letting agents. It is totally web based, hosted by us
and available, like all of our products, for an affordable monthly subscription.
Expert Agent is the estate agency software product of choice in nearly 1100 residential,
commercial and lettings businesses across the UK and Europe.
For more information about our
Estate Agent Software please click the link.