)/agencies/{da6f9d91-7467-422c-b642-00d55a45ba8b}/{0ddbaacf-c076-47d9-b9f1-35555042d7c3}/main/user_edited_photo-823efc92_user-edited-61fadc28-83.jpg)
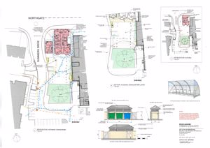
The site has planning permission to convert the existing building into 4 x 1 bedroom apartments and 4 x 2 bedroom duplex apartments (planning references 16/00075/STPLF & 22/02672/STVAR) and a 1 x 4 bedroom detached house (planning reference 22/02201/PLF).The plans also include the provision for off street parking for 15 vehicles, landscaping and refuse storage
Main House Flat 1 - 1 bedroom ground floor - 53.8m2 Flat 2 - 1 bedroom ground floor - 47m2 Flat 3 - 1 bedroom ground floor - 56.2m2 Flat 4 - 1 bedroom ground floor - 57m2 Flat 5 - 2 bedroom first/second floor duplex - 81.9m2 Flat 6 - 2 bedroom first/second floor duplex - 90.1m2 Flat 7 - 2 bedroom first/second floor duplex - 79m2 Flat 8 - 2 bedroom first/second floor duplex - 88.2m2 New Build House 4 bedroom detached house - 102.5m2
The planning permission includes the provision for off street parking spaces for 15 vehicles, landscaping and appropriate refuse storage areas
A section 106 agreement is in place and a condition of the planning permission. This requires an affordable housing contribution and recreational facilities contribution which totals approximately £30,000 and will be the responsibility of the purchaser and therefore should be factored into the overall costs to develop the site. Further details can be provided upon request
In most cases we use wide angle lens photography to ensure we capture as much of the room and its features. This can distort the image slightly and should be considered alongside the other details within the particulars. Oscars give notice that these particulars whilst believed to be accurate are set out as a general outline only for guidance and do not constitute any part of an offer or contract. Purchasers and potential purchasers should not rely on them as statements or representations of fact, but must satisfy themselves by inspection or otherwise to assess their accuracy. No person in the employment of Oscars has the authority to make or give any representation or warranty in relation to the property. In compliance with NTSELAT guidance on referral fees, we confirm that vendors and prospective purchasers will be offered estate agency and other associated services for which certain referral fees/commissions may be made available to the agent. Full details can be found on our website
Free Valuation: If you are considering selling or letting your property, we would be delighted to provide a free valuation and marketing advice. Please contact the office on 01482 446644 to arrange an appointment.
Please note that if your offer is accepted on a property, we are legally required to undertake identity checks and anti-money laundering checks. These are conducted by a third party, Hipla, on our behalf and there is a charge of £20+VAT (£24 incl VAT) for their services. If you do not wish for your data to be processed for ID/AML purposes you must notify our sales team at offer stage.
The property is currently in a state of disrepair and therefore internal viewings may be difficult. External viewing of the site can take place at any time but the protective Heras fencing must not be breached EPC rating - N/A Council Tax Band - Individual units will be classified upon completion Broadband - Standard & Ultrafast are available in this general location Mobile phone coverage - 1 network is listed as good both indoors and outdoors, 2 networks are listed as variable indoors and good outdoors with 1 further network listed as good - outdoors only. Please refer to the Ofcom website for further details Flood risk - Very low