Steel & Co Commercial Property Services
92 High Street
Lowestoft
Suffolk
NR32 1XW
01502 446000
High Street, LowestoftGuide Price £200,000
Main Image
Photo 8- click for photo galleryPhoto 1- click for photo galleryPhoto 3- click for photo galleryPhoto 4- click for photo galleryPhoto 5- click for photo galleryPhoto 6- click for photo galleryPhoto 7- click for photo galleryPhoto 8- click for photo galleryPhoto 9- click for photo galleryPhoto 10- click for photo gallery
On MarketSteel & Co Commercial Property Services - 01502 446000Burnt Out Building
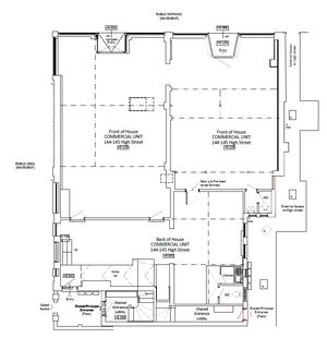
144–145 High Street is a prominent freehold building situated in the heart of Lowestoft. Previously arranged as a well-sized commercial unit on the ground floor with residential flats above, the property was subject to fire damage but now presents a unique redevelopment and investment opportunity.

Planning permission has been secured for the reinstatement of the property, providing buyers with confidence that the scheme is ready to proceed. Once completed, the building will offer a refurbished commercial unit alongside a portfolio of modern self-contained flats, all compliant with current building regulations, fire safety requirements, and energy performance standards.

The approved scheme reinstates the ground floor retail unit, which benefits from direct High Street frontage, an open-plan sales area, and ancillary storage to the rear. Additional features include staff welfare facilities, making the unit suitable for a wide range of occupiers, from independent retailers to service providers and food and beverage operators.

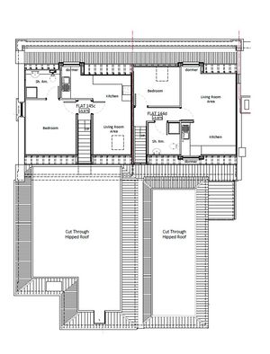
Above the commercial premises, the property will accommodate a number of well-designed one and two bedroom flats. The first floor reinstatement provides practical and efficient layouts with modern kitchens, bathrooms, and open living spaces. The second floor, formerly within the roof space, will be reinstated to create stylish apartments benefitting from dormer windows, excellent natural light, and open-plan living areas. Shared access and circulation spaces will be upgraded to meet modern standards, ensuring a safe and comfortable environment for future residents.

This property represents a rare chance to acquire a centrally located freehold with the benefit of planning permission already in place. For developers and investors, this eliminates much of the uncertainty and delay often associated with similar projects. Once reinstated, the property will deliver a versatile High Street retail unit alongside a collection of high-demand modern flats, creating a strong blended rental yield and long-term investment security.

Website Design and Estate Agency Software By Expert Agent
Expert Agent Estate Agency Software