)/agencies/{b6db0897-c4b7-46c1-b661-0d22d47b1363}/{200b9f11-99fd-4ade-a7ca-26b0ac3978d0}/main/dji_fly_20241011_030650_510_1728552488065_aeb-Edit.jpg)
Situated in the centre of the village green in Stamfordham, is this magnificent old coaching inn which dates back to the 18th Century with other additions and extensions taking place in the 19th and 20th Centuries. The coaching inn and pub provided a valuable community asset and facility to the village and the country homeowners beyond.
Offers are sought for the property in excess of a low guide price of £250,000 and preference will be given to those prospective buyers who can proceed unconditionally and without financial restrictions. The property will only be purchasable by cash buyers!
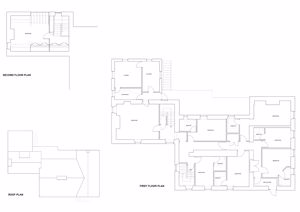
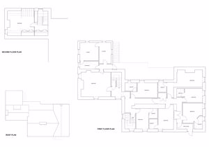
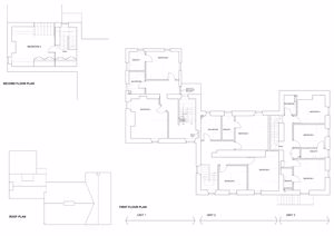
The property received planning permission in 2016 to be converted from the existing commercial use into three residential dwellings.
Works were initially carried out to the building, but the majority of the property requires full updating, refurbishment and modernisation.
Planning References are:
Planning - 15/03336/FUL
Listed Building Consent - 15/03361/FUL
The three dwellings to be formed within the building include:
Unit 1(East Side) 176m2 gross internal area
A hallway leading to the kitchen/breakfast room with a lounge, WC and staircase up to the first floor, where there will be two bedrooms, one with an ensuite, and a family bathroom. The second floor provides a third bedroom with a low ceiling and a nice dormer window. The property will have attractive views over the village green.
Unit 2 (The Middle) – 158m2 gross internal area
To the ground floor there will be a kitchen, a large open plan lounge and dining room with a cloakroom and stairs leading to the first floor, where there are three bedrooms, one with an ensuite and a family bathroom.
Unit 3 (West Side) – 136m2 gross internal areas
A kitchen/breakfast room and lounge to the ground floor with stairs leading up to the first floor, where there will be three bedrooms, two with ensuites, and a bathroom. There is also access from this unit into the cellars and the property has nice views over towards the village church and beyond from the first floor bedrooms.
The planning permission provides for external garden spaces and courtyard by removing some of the more recent extensions and additions and opening up some of the garden areas to the south.
The properties have border gardens surrounding to the north and west and there are communal parking bays allocated to The Bay Horse Inn, set within the village green, which are to be exclusively used for the properties and their visitors.
This opportunity creates a fabulous potential for the village and will provide three beautiful homes in a super location.
The properties are provided with full mains services, water, drainage and electricity, and the whole of the building has a freehold tenure.
A site plan identifies the title of the property, as well as the open parking bays available within the village green.
All planning permissions, elevations and heritage certificate are available on file and any further enquiries can be reached by contacting Sanderson Young's Gosforth Office on gosforth@sandersonyoung.co.uk.