Broadgrove Nursery Farm Shop, Eckington Road, BirlinghamOffers in the Region Of £600,000
Sold STCNigel Poole & Partners - Pershore - 0138655650600004077
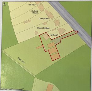
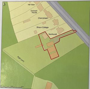
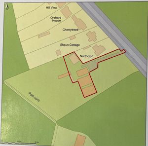
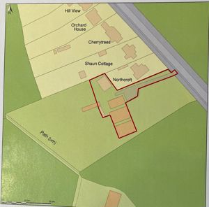
- Re-development site
- Commercial consent W/23/00042/FUL (7 light industrial units)
- Approval in principle - residential W/23/02328
- Semi-rural location
- Easy access M5 and facilities
- Option/conditional contract considered
**A REDEVELOPMENT SITE WITH BOTH RESIDENTIAL AND COMMERCIAL OPPORTUNITIES** Commercial consent granted for 7-units on part of the site - balance is available for further development. Residential approval in principle for 4 units on part of the site - rest also being available.
- Light Industrial Units
1 & 2 – 100 sq.m
3 – 75 sq. m
4- 150 sq.m
5 & 6 – 125 sq.m
7 – 150 sq.m
- Additional Information
The total site area is approx. 2-acres. As can be seen from the plans the industrial and residential areas being sold are different and both form part of the overall site. This is done to minimise an uplift payment to the council on any areas that have development consent.
The remainder of the site is available by way of a conditional contract or option on terms to be agreed.
Expert Agent supplies powerful web based estate agency software, estate agent web
site design and estate agent marketing systems. Our estate agent software is suitable
for both estate agents and letting agents. It is totally web based, hosted by us
and available, like all of our products, for an affordable monthly subscription.
Expert Agent is the estate agency software product of choice in nearly 1100 residential,
commercial and lettings businesses across the UK and Europe.
For more information about our
Estate Agent Software please click the link.