Badsell Road, Five Oak GreenGuide Price £1,250,000
On MarketLambert & Foster Paddock Wood - 01892 832325LF004137
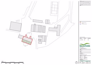
- A former farmyard and range of buildings
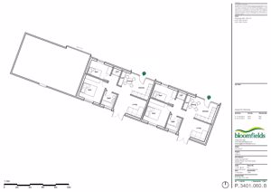
- Outline planning permission and prior approval for 6 dwellings
- Located on the edge of the village of Five Oak Green
Former farmyard and range of buildings with Outline planning permission and Prior approval for 6 dwellings.
The site is consented as a result of two separate planning permissions summarised below:
In February 2024 (TW/23/01726/OUT) outline permission was granted for the erection of conversion of 4 dwellings from the former farmyard.
In December 2024, a further planning consent (TW/24/02611/PNQCLA) was approved for the Change of Use of a former cold store from agricultural use
to two dwelling houses.
The site plans relating to both consents are included in the sales brochure.
The general setting of the yard is adjacent to residential homes to be retained by the vendor and a substantial steel portal frame store which could, subject to negotiations, form part of the land to be sold. The land to the west forms part of a larger established solar farm.
VIEWINGS: Strictly by appointment with Lambert & Foster’s Paddock Wood office. Contact Alan Mummery or Will Jex.
DIRECTIONS: what3words location is pines.haggle.difficult or Postcode TN12 6QX
METHOD OF SALE: Unconditional offers are invited for the freehold interest.
SERVICES: The site adjoins established residential properties so mains water, electricity and drainage are available adjacent to the site. Purchasers should, however, rely on their own enquiries as to the suitability and availability of local connections.
DATA PACK: A full data pack will be sent on request, or planning information can be downloaded from the Tunbridge Wells Borough Council website. Planning permission was obtained by Lambert & Foster’s in-house Chartered Town Planners, Bloomfields.
LOCAL AUTHORITY: Tunbridge Wells Borough Council.
To download the full particulars please see the attached links below. Should you wish to have a copy of the brochure posted to you or discuss details further please don't hesitate to contact us on the numbers provided.
Expert Agent supplies powerful web based estate agency software, estate agent web
site design and estate agent marketing systems. Our estate agent software is suitable
for both estate agents and letting agents. It is totally web based, hosted by us
and available, like all of our products, for an affordable monthly subscription.
Expert Agent is the estate agency software product of choice in nearly 1100 residential,
commercial and lettings businesses across the UK and Europe.
For more information about our
Estate Agent Software please click the link.