Old Chapel Gardens, Glentham£325,000
On MarketStarkey&Brown Lincoln - 01522 84584500019919
- Fantastic development opportunity
- Full planning for five detached houses
- Approximately 1.27 acres
- Village Location
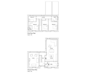
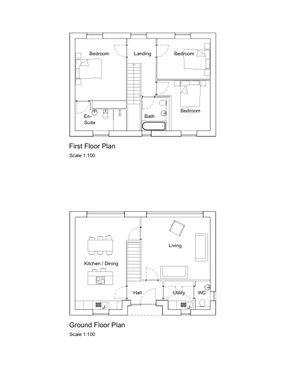
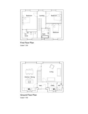
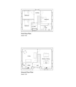
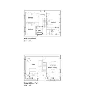
- 2 x three bed detached
- 3 x four bed detached
- WLDC planning reference - WL/2024/00083
- Call today for more information
FULL PLANINNG FOR FIVE DETACHED HOUSES!
Located within the village of Glentham, ideally located only 8 miles from Market Rasen, 12 miles from Gainsborough and 14 miles from the cathedral city of Lincoln, is this fantastic development site which extends to approximately 1.27 acres, with full planning permission granted for five detached houses which stand upon generous plots. Glentham benefits from a public house, a village shop, village hall and a garden centre. One of the plots benefits from its own private access whilst the other plots form a pleasant courtyard development. Full planning permission has been granted and further information can be found by searching the West Lindsey planning portal using the reference WL/2024/00083. Please note that further land may be available subject to negotiation. Call today for further information.
Expert Agent supplies powerful web based estate agency software, estate agent web
site design and estate agent marketing systems. Our estate agent software is suitable
for both estate agents and letting agents. It is totally web based, hosted by us
and available, like all of our products, for an affordable monthly subscription.
Expert Agent is the estate agency software product of choice in nearly 1100 residential,
commercial and lettings businesses across the UK and Europe.
For more information about our
Estate Agent Software please click the link.