Woodland Park, Colwyn Bay£149,950
On MarketFletcher & Poole - Rhos - 01492 549178RP3792
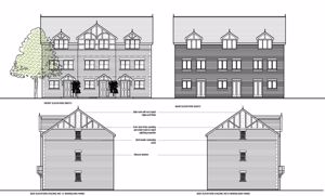
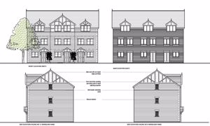
- PLANNING REFERENCE 0/47444
- PLOT WITH PLANNING PERMISSION GRANTED
- THREE X 3 BEDROOM TOWNHOUSES
- MODERN CONTEMPORARY DESIGN WITH OPEN PLAN LIVING
- OFF ROAD PARKING TO THE FRONT
- GOOD SIZED GARDEN TO THE REAR
A substantial plot in the heart of Colwyn Bay with planning permission granted for Three x 3 bedroom townhouses. This is an ideal opportunity for a developer to create a modern contemporary block of town houses which benefit internally from a separate lounge, an open plan kitchen/diner to the rear, 3 bedrooms, two bathrooms and an office. Outside to the front there will be off road parking with a good sized garden to the rear.
- Location
The plot of land is located in the heart of Colwyn Bay with its variety of local shops and other amenities close by. It is conveniently located near to the A55 dual carriageway for easy access to Chester and the motorways beyond.
- Directions
From the Rhos On Sea office turn right onto the Promenade, follow the Promenade turning right by The Toad Public House, at the crossroads go straight across, at the mini roundabout turn left onto Conway Road, continue through Colwyn Bay, turn right onto Woodland Road East, Woodland Park can be found on the left hand side.
Expert Agent supplies powerful web based estate agency software, estate agent web
site design and estate agent marketing systems. Our estate agent software is suitable
for both estate agents and letting agents. It is totally web based, hosted by us
and available, like all of our products, for an affordable monthly subscription.
Expert Agent is the estate agency software product of choice in nearly 1100 residential,
commercial and lettings businesses across the UK and Europe.
For more information about our
Estate Agent Software please click the link.