Crossley Moor Road, Newton AbbotGuide Price £450,000
On MarketRendells - Newton Abbot - 01626 353881DRN01336
- A Former Water Mill for Development
- Planning Permission For Two Residential Dwellings
- Vacant Possession
- Full Planning Details On Teignbridge Planning Website
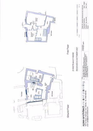
High Mill is a historical Grade II listed former water mill which retains original workings of the water mill. Currently the building has planning permission to convert it into two separate four bedroomed dwellings, however there is also much potential to convert the property into separate apartments subject to planning permission. The property is located in a residential road within Kingsteignton and within walking distance there are also local facilities including schooling, shops and a local public house.
- Description
High Mill is a historical Grade II listed former water mill which retains original workings of the water mill. Currently the building has planning permission to convert it into two separate four bedroomed dwellings, however there is also much potential to convert the property into separate apartments subject to planning permission. The property is located in a residential road within Kingsteignton and within walking distance there are also local facilities including schooling, shops and a local public house.
- Services
Mains water and drainage and mains electricity.
If you request a viewing of a property, we the Agent will require certain pieces of personal information from you in order to provide a professional service to both you and our clients. The personal information you provide may be shared with our client, but will not be passed to third parties without your consent. The Agent has not tested any apparatus, equipment, appliance, fixtures, fittings or services and so cannot verify that they are in working order, or fit for the purpose. A Buyer is advised to obtain verification from their solicitor and/or surveyor. References to the tenure/outgoings/charges of a property are based on information supplied by the seller - the Agent has not had sight of the title documents. A Buyer is advised to obtain verification from their solicitor. Items shown in photographs/floor plans are not included unless specifically mentioned within the sale particulars. They may be available by separate negotiation. Buyers must check the availability of any property and make an appointment to view before embarking on a journey to view a property.
Expert Agent supplies powerful web based estate agency software, estate agent web
site design and estate agent marketing systems. Our estate agent software is suitable
for both estate agents and letting agents. It is totally web based, hosted by us
and available, like all of our products, for an affordable monthly subscription.
Expert Agent is the estate agency software product of choice in nearly 1100 residential,
commercial and lettings businesses across the UK and Europe.
For more information about our
Estate Agent Software please click the link.