Heath Road, Bromstead, NewportOffers in the Region Of £450,000
On MarketBarker Healey Property Limited - 0195281362500002620
- Part-Completed Detached Barn Conversion
- Potential To Create Bespoke Rural Home
- Detached Garage
- 1/5 Acre Plot
- Far Reaching Countryside Views
- NO UPWARD CHAIN!
- Proposed 3 Bedrooms (all with En-suite)
- Large Open-Plan Downstairs Space
- Services In Situ, .Hardwood D.G Windows & Doors
- EPC Rating F. Council Tax Band D.
Providing a rare and fantastic opportunity to create your very own bespoke dream home, The Old Granary is a detached barn within a good sized wrap around plot which currently offers the potential for the next owners to choose their own layout and finish. Being wind and water tight, it is currently partially insulated with electricity connections, Klargester sewerage treatment, oil central heating connection and benefits from solid oak beams, hardwood double glazed windows and doors throughout.
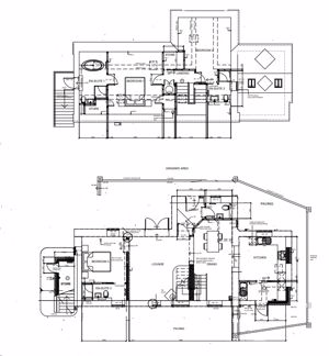
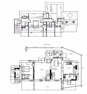
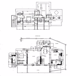
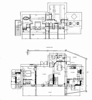
The current plans may be used as a guide and provide scope for a large open-plan Lounge/Dining Area, separate Kitchen, Utility Room, Downstairs Bedroom (with En-suite) and two upstairs Bedrooms (both with En-suites and Master with external staircase/Juliet Balcony), but the choice is yours! Already being classed as a residential property, the original granary was constructed in the mid-1800's and the total plot extends to approximately 1/5th of an acre with the benefit of a Detached Garage (with electric lighting and power) and a well with potential for private water. The location is second to none with far-reaching countryside views from the upstairs windows, whilst still being just a stone's throw from the nearby towns of Newport and Stafford. Gnosall - 3.5 miles (Morrisons Daily & pubs). Newport - 4.8 miles (many supermarkets & amenities). The Fox (Chetwynd Aston) - 3.3 miles (pub/restaurant).
EPC Rating F. Council Tax Band D. NO UPWARD CHAIN!
- Property entered via
hardwood double glazed door into
- Open-plan Downstairs Space36' 2'' x 23' 5'' (11.02m x 7.13m) (max)
Proposed Living/Dining Area with potential to create a Downstairs Bedroom, En-suite and separate Downstairs W.C.
Stairs to first floor.
- Kitchen Area11' 6'' x 10' 11'' (3.50m x 3.32m)
Proposed Kitchen area opening to
- Utility Room6' 0'' x 4' 8'' (1.83m x 1.42m)
Proposed Utility Room
- Upstairs to
first floor
- First Floor 36' 2'' x 11' 5'' (11.02m x 3.48m) (max - restricted head height)
Offering open-plan space with potential to create a Master Bedroom with En-suite and Bathroom/2nd En-suite. Door to outside with the possibility to create a Juliet balcony or add external stairs. Extending and open to
- First Floor 10' 2'' x 8' 4'' (3.10m x 2.54m) (max - restricted head height)
Potential 2nd Bedroom area.
- Outside
To the front is a parking area for two vehicles which leads to a concrete driveway prior to double access gates which open onto a shale area that extends to one side of the property. Metal storage shed.
A lawned garden lies to the fore with established hedging to three sides, shielding the plot from the road and providing privacy. A well situated to the front offers the opportunity for a private water supply. A paved pathway allows pedestrian access to the rear of the building and leads to a paved patio with inset borders.
- Detached Garage17' 1'' x 16' 1'' (5.20m x 4.90m)
Two doors and a window to the front. Electric lighting and power. Boarded loft space.
Expert Agent supplies powerful web based estate agency software, estate agent web
site design and estate agent marketing systems. Our estate agent software is suitable
for both estate agents and letting agents. It is totally web based, hosted by us
and available, like all of our products, for an affordable monthly subscription.
Expert Agent is the estate agency software product of choice in nearly 1100 residential,
commercial and lettings businesses across the UK and Europe.
For more information about our
Estate Agent Software please click the link.