Cherrington Road, Tibberton, NewportOffers in the Region Of £230,000
On MarketBarker Healey Property Limited - 0195281362500003037
- **DEVELOPMENT OPPORTUNITY**
- Existing Methodist Chapel with Full Planning Permission
- Potential to Extend & Create a 4 Bedroom Detached Home
- Large Open-Plan Kitchen/Living/Dining Area
- Views Over Open Countryside
- Driveway Parking
- Garden Area
- Fabulous Sought-After Village Location
- NO UPWARD CHAIN!
- Planning Application TWC/2024/0600
Having been originally constructed in 1843, and extended in 1933 to accommodate the children's Sunday school, this former Methodist Chapel is being offered with Full Planning Permission to further extend and convert it into a stylish 3/4 Bedroom detached family home. This unique opportunity allows the next owner(s) to purchase a piece of local history on the edge of the picturesque village of Tibberton from which to enjoy the stunning views over open countryside, whilst still being just a stone's throw from the nearby school, nursery and all amenities, not to mention road and transport links to the market town of Newport.
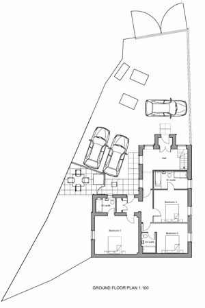
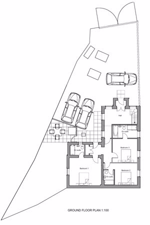
The permitted design allows for a stylish double height entrance hallway with stairs leading up to a fabulous open-plan Kitchen/Dining/Living Area boasting vaulted ceilings and additional skylight windows to allow even more light to flood in. A Study/4th Bedroom with adjoining Shower Room completes the upstairs layout. Downstairs there are provisions for 3 double Bedrooms, each with their own En-suite Bath/Shower Room.
Currently comprising Entrance Porch, 39ft Existing Chapel, Existing Sunday School Room, Rear Porch and W.C., the property benefits from mains water, drainage and electricity connections. Externally there is driveway parking and an area of garden land. Please see photos for proposed floorplans and CGIs of the potential layout/finish. Planning Application documents may be viewed via Telford & Wrekin's website ref: TWC/2024/0600. NB: There is a right of way over the right hand side of the plot to allow access to the field behind.
- Property entered via
double doors into
- Entrance Porch5' 0'' x 3' 5'' (1.52m x 1.04m)
Double doors to
- Existing Chapel39' 6'' x 17' 10'' (12.03m x 5.43m)
Sliding door opening to
- Existing Sunday School Room17' 5'' x 12' 0'' (5.30m x 3.65m)
Door to
- Rear Porch5' 3'' x 3' 5'' (1.60m x 1.04m)
Door to outside and door to
- W.C.4' 10'' x 3' 7'' (1.47m x 1.09m)
- External Store Cupboard4' 10'' x 4' 8'' (1.47m x 1.42m)
- Externally
The property lies adjacent to the Cherrington Road with a tarmacadam driveway to the front offering parking for up to 3 vehicles. To the other side is a an area of garden land which leads to a storage shed. Access to a Brick Built Store and a door to the Rear Porch may be gained from the garden area.
NB: Farmer's access to the neighbouring field must be permitted to the side of the driveway furthest away from the property. A small Severn Trent sewerage treatment facility also lies within the boundary of the property.
Expert Agent supplies powerful web based estate agency software, estate agent web
site design and estate agent marketing systems. Our estate agent software is suitable
for both estate agents and letting agents. It is totally web based, hosted by us
and available, like all of our products, for an affordable monthly subscription.
Expert Agent is the estate agency software product of choice in nearly 1100 residential,
commercial and lettings businesses across the UK and Europe.
For more information about our
Estate Agent Software please click the link.