WoodchurchGuide Price £169,000
On MarketAngela Hirst Chartered Surveyors - 0845 521 1980R1709
- Building Plot in Woodchurch
- Planning Consent for a 2 Bedroom Bungalow
- Village Location
- Extra Garden Available By Separate Negotiation With Potential Building Plot (Subject to Obtaining Planning Consent)
- Attractive Rural Views to Rear
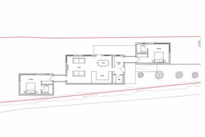
A building plot well situated on the outskirts of the pretty village of Woodchurch with planning consent for a detached 2 bedroom bungalow. This plot enjoys far reaching rural views to the rear. Work on the build has previously been started and footings are in place. Details can be found on Ashford Borough Council website, application reference 18/00260/AS. The planned construction would be ideal for air source heat pump and solar panels.
A further area of garden may be available by separate negotiation and is believed to have potential for a second building plot for a detached one bedroom bungalow (subject to obtaining planning consent).
The village of Woodchurch benefits from a pretty village green and good facilities including a primary school, doctors surgery, village store and 2 public houses. The nearby town of Tenterden offers picturesque High Street shopping and the market town of Ashford provides further amenities as well as commuting links including Ashford International Station and The M20 motorway.
Tenure: Freehold
Flood Risk: Rivers & Sea - Very Low / Surface Water - High
Mobile Phone Signal: Yes
Local Authority: Ashford Borough Council
Expert Agent supplies powerful web based estate agency software, estate agent web
site design and estate agent marketing systems. Our estate agent software is suitable
for both estate agents and letting agents. It is totally web based, hosted by us
and available, like all of our products, for an affordable monthly subscription.
Expert Agent is the estate agency software product of choice in nearly 1100 residential,
commercial and lettings businesses across the UK and Europe.
For more information about our
Estate Agent Software please click the link.