Angela Hirst Chartered Surveyors
Warehorne Road
Hamstreet
Ashford
Kent
TN26 2JW
0845 521 1980
Cockreed Lane, New RomneyGuide Price £525,000
Main Image
Photo 2- click for photo galleryPhoto 7- click for photo galleryPhoto 3- click for photo galleryPhoto 4- click for photo galleryPhoto 1- click for photo galleryPhoto 5- click for photo galleryPhoto 6- click for photo galleryPhoto 8- click for photo gallery
On MarketAngela Hirst Chartered Surveyors - 0845 521 1980R1728
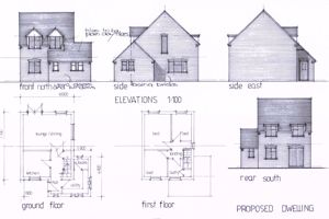
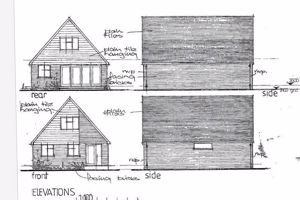
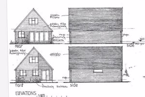
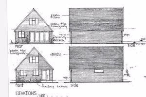
An exciting opportunity to purchase land with planning consent for 3 detached homes. The plans include a detached 3 bedroom house with kitchen, lounge/dining room, utility room, cloakroom, bathroom and also two detached 2 bedroom homes. There is currently a mobile home with a shed and timber summerhouse on site that will remain as part of the sale. The land extends to approximately 0.77 acre.

Details can be found on Folkestone & Hythe District Council website wit planning references 23/1810/FH and 21/2385/FH

The centre of the Cinque Port town of New Romney is nearby and the seafront and beaches are within easy reach. New Romney offers some good amenities including shopping, a supermarket, schools, restaurants and pubs.

Tenure: Freehold
Services: Mains electricity, water and drainage are currently connected to the mobile home.
Mobile Phone Signal: Yes
Flood Risk: Very low (Source Gov.uk)
Directions: what3words///token.start.downcast







Website Design and Estate Agency Software By Expert Agent
Expert Agent Estate Agency Software