The Old Police Station, Hill View, Church Road, Barnton Guide Price £400,000
Sold STCRoyal Fox Northwich - 01606 44044RFX04105
IMPOSING EDWARDIAN DETACHED - OVER 3000 SQ FT OF PROPERTY! - VAST POTENTIAL ... Royal Fox Estates are pleased to offer this 1900's detached property formerly serving Barnton village as a police station. Now a residential dwelling, the home has been improved over the years by the current owners however offers enormous potential and possibilities to go further with the substantial internal space on offer!
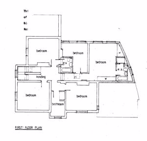
ACCOMMODATION: To the ground floor are two entrance porches. The front porch leading into a large entrance hall, the side porch off the garden leading into an inner hall with stairway. Off the hallways are three large reception rooms currently being used as a Lounge, Office & downstairs bedroom. There is a spacious, modern, open plan Breakfast Kitchen & conservatory. In addition, a Utility Room, Cloakroom/WC & internal access to the Double Garage. To the first floor are three very generous bedrooms, four piece family bathroom & a convertible first floor loft space (permission previously obtained to convert to add two further en-suite bedrooms or create a separate dwelling) giving huge scope to add value.
OUTSIDE: At the rear is a private enclosed courtyard, leading round to a generous lawned garden boarded by mature hedges & elevated offering views over Barnton Hill and the Trent & Mersey Canal.
LOCATION: Barnton village benefits from a good range of amenities, as well as nursery and primary school. Outdoor pursuits can be found just around the corner with both Marbury Country Park & the Anderton Boat Lift/Nature park close by. Northwich Town Center is approx. 2.5 miles away with its wide range of shops, services, major supermarkets & national chains. Good access is afforded via the A49 onto the major motorway networks putting nearby cities such as Chester, Manchester & Liverpool within easy reach.
Approx Sq Footage: 3208 (298.1 Sq m)
Tenure: Freehold
EPC Rating: D
Council Band: B
Mains Connected: Electric, Gas, Water, Sewage
Parking Arrangements: Double Garage
- Front Porch 7' 7'' x 5' 7'' (2.31m x 1.71m)
- Entrance Hall15' 1'' x 21' 3'' (4.59m x 6.48m)
- Side Porch 5' 5'' x 4' 0'' (1.64m x 1.23m)
- Inner Hall 5' 6'' x 16' 1'' (1.68m x 4.89m)
- Living Room / Bedroom Four 13' 4'' x 18' 10'' (4.06m x 5.74m)
- Reception Room/Office 17' 7'' x 13' 1'' (5.36m x 4m)
- Lounge17' 7'' x 14' 0'' (5.36m x 4.27m)
- Breakfast Kitchen15' 0'' x 13' 0'' (4.56m x 3.95m)
- Conservatory12' 10'' x 10' 4'' (3.91m x 3.14m)
- Utility Room 8' 0'' x 15' 7'' (2.44m x 4.76m)
- Cloakroom/WC
- Double Garage
- First Floor Landing 9' 8'' x 23' 11'' (2.94m x 7.28m)
- Bedroom One13' 4'' x 16' 0'' (4.06m x 4.87m)
- Bedroom Two 13' 4'' x 15' 7'' (4.06m x 4.75m)
- Bedroom Three 13' 0'' x 15' 0'' (3.95m x 4.56m)
- Family Bathroom 12' 6'' x 9' 3'' (3.81m x 2.83m)
- First Floor/Loft Space
Expert Agent supplies powerful web based estate agency software, estate agent web
site design and estate agent marketing systems. Our estate agent software is suitable
for both estate agents and letting agents. It is totally web based, hosted by us
and available, like all of our products, for an affordable monthly subscription.
Expert Agent is the estate agency software product of choice in nearly 1100 residential,
commercial and lettings businesses across the UK and Europe.
For more information about our
Estate Agent Software please click the link.