North End, Calne£150,000
On MarketCharles Faye - 01249 822555LSO03350
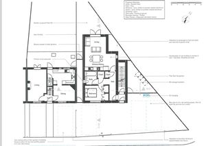
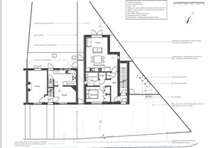
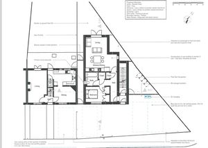
- Approved Planning With Conditions
- Two One Bedroom Apartments
- Open Plan Living
- Bedroom With Fitted Wardrobes
- Private Gardens
- Allocated Parking
- EV Charging Points
- Walking Distance To The Town And Surrounding Amenities.
A building plot with approved planning permission with conditions for two new one bedroom apartments. These properties will offer open plan living dining kitchen, one double bedroom, allocated parking and a private garden for each property. There will be a double bedroom with two double built in wardrobes, a bathroom and ample storage. In the ground floor apartment the open plan living dining kitchen has patio doors out to the rear garden, the first floor apartment having it own garden to the side of the properties. The plot also includes allocated parking for both the properties, EV Charging points and solar panels. Application number PL/2025/04025
LOCATION The plot is placed within level walking distance of the town centre and local surrounding amenities.
AREAS CLOSE BY The town of Calne is surrounded by some of the most beautiful countryside Wiltshire has to offer. There are also local historic sites Avebury, Bowood House and the surrounding towns include Marlborough, Devizes with the Caen Hill Locks and canal, Chippenham and Royal Wootten Bassett both providing easy access to the M4.
ADJACENT HOME The plot was formally part of the neighbouring semi detached property.
If you have any questions or require further information do please get in touch.
Expert Agent supplies powerful web based estate agency software, estate agent web
site design and estate agent marketing systems. Our estate agent software is suitable
for both estate agents and letting agents. It is totally web based, hosted by us
and available, like all of our products, for an affordable monthly subscription.
Expert Agent is the estate agency software product of choice in nearly 1100 residential,
commercial and lettings businesses across the UK and Europe.
For more information about our
Estate Agent Software please click the link.