Private Road, High WycombeGuide Price £625,000
On MarketCrendon House - Wooburn Green - 01628 527766JDA828
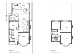
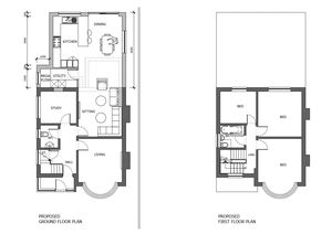
- Detached 1930's Home
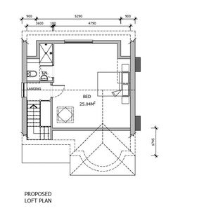
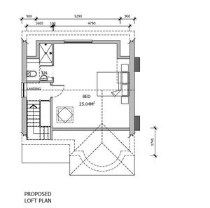
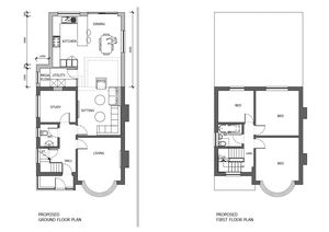
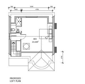
- Previous Planning Consent For Loft Conversion & Rear Extension (19/05811/FUL)
- Garage & Driveway Parking
- Two Generous Reception Rooms
- Rear Garden In Excess Of 100ft
- Sought After Private Road In Cressex
- Short Walk To Grammar Schools
- No Chain
Crendon House are pleased to welcome to the market this detached character home, positioned in one of High Wycombe’s most sought-after private residential locations within Cressex and within walking distance of the town’s renowned grammar schools. The property previously held planning permission for a loft conversion creating a master double bedroom with en-suite, as well as a 6-metre rear extension (19/05811/FUL). Although the planning has now lapsed, the precedent provides a strong indication of the potential for future development, subject to obtaining new consent. This attractive family home also benefits from a rear garden extending to over 100ft, a garage, driveway parking, gas central heating and a downstairs WC. To fully appreciate the accommodation on offer and the scope for enhancement, we highly recommend arranging an accompanied viewing. NO CHAIN.
Rupert Avenue is a residential street on the southwest side of High Wycombe, close to Cressex and Booker. The area offers convenient access to local supermarkets, everyday shops and regular bus routes into the town centre. Several primary schools are nearby, and High Wycombe’s grammar schools are within walking distance. Junction 4 of the M40 is close by for straightforward road links, and nearby provides direct services to London.
- Ground Floor
- Entrance Porch
Accessed via UPVC front with double glazing to front aspect.
- Entrance Hall
Accessed via wooden front door with glass panelling, under stairs storage, radiator.
- Cloakroom
Obscured double glazed window to side aspect, fully tiled walls, low level WC, hand wash basin, tiled flooring.
- Living Room11' 5'' x 11' 3'' (3.48m x 3.43m)
Double glazed bay fronted window to front aspect, radiator, fireplace.
- Dining Room12' 0'' x 11' 5'' (3.65m x 3.48m)
Doors leading to conservatory, radiator, fireplace.
- Kitchen9' 5'' x 8' 5'' (2.87m x 2.56m)
Double glazed window to side aspect, variety of eye and base level cabinets with contrasting work surfaces, tiled splash back, electric stove with oven below and extractor fan above, stainless steel sink, cupboard housing Vaillant combination boiler, radiator.
- Conservatory7' 10'' x 7' 9'' (2.39m x 2.36m)
Double glazed windows and doors to rear garden.
- Rear Porch
UPVC door to rear garden, space and plumbing for washing machine, space for tall fridge/freezer.
- First Floor
- Landing
Obscured double glazed windows to side aspect, access to loft.
- Bedroom 111' 5'' x 11' 5'' (3.48m x 3.48m)
Double glazed bay fronted window to front aspect, radiator, picture rails.
- Bedroom 212' 0'' x 11' 5'' (3.65m x 3.48m)
Double glazed window to rear aspect, built in wardrobes, picture rails.
- Bedroom 39' 5'' x 8' 4'' (2.87m x 2.54m)
Double glazed window to rear aspect, built in wardrobe, radiator.
- Bathroom
Obscured double glazed window to side aspect, fully tiled walls, low level WC, hand wash basin with integrated storage, bath with shower attachment and mixer tap, heated towel rail, tiled flooring.
- Outside
- Garage
Up and over door with light and power.
- Rear Gardens
Laid to lawn with mature hedging and trees, side access via tall wooden gate, access to garage.
- Front Garden
Area laid to lawn with driveway parking, hedging and trees.
Expert Agent supplies powerful web based estate agency software, estate agent web
site design and estate agent marketing systems. Our estate agent software is suitable
for both estate agents and letting agents. It is totally web based, hosted by us
and available, like all of our products, for an affordable monthly subscription.
Expert Agent is the estate agency software product of choice in nearly 1100 residential,
commercial and lettings businesses across the UK and Europe.
For more information about our
Estate Agent Software please click the link.