Burnt House Lane, SmardenGuide Price £570,000
On MarketLambert & Foster Cranbrook - 01580 71288800002469
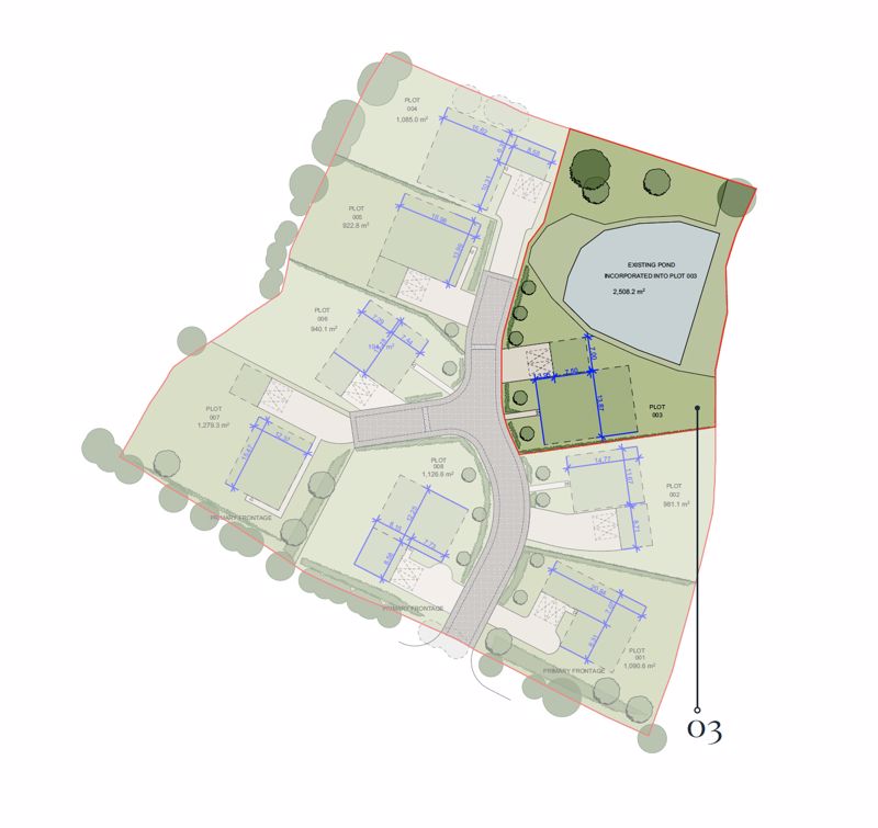
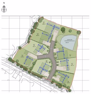
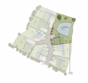
- A development opportunity to build your own home in a design and planning agreement with Potton Homes
- Eight serviced plots with infrastructure works completed including roads, drainage connection and utilities
- An option of house styles and size with gross internal areas (GIA's) ranging from 340 sqm/3658 sqft to 490 sqm/5272sqft
- Potton provide the vehicle for each custom builder to deliver their home
- Plot 3 - plot area 2508.2 sqm GIA 490sqm/5272 sqft
- Rural location set on periphery of picturesque wealden village, mainline railway station in Headcorn village 3 miles distance
*A development opportunity to build your own home in a design and planning agreement with Potton Homes
*Eight serviced plots with infrastructure works completed including roads, drainage connection and utilities
*An option of house styles and size with gross internal areas (GIA's) ranging from 340 sqm/3658 sqft to 490 sqm/5272sqft
*Potton provide the vehicle for each custom builder to deliver their home
*Plot 3 - plot area 2508.2 sqm GIA 490sqm/5272 sqft
*Rural location set on periphery of picturesque wealden village, mainline railway station in Headcorn village 3 miles distance
Expert Agent supplies powerful web based estate agency software, estate agent web
site design and estate agent marketing systems. Our estate agent software is suitable
for both estate agents and letting agents. It is totally web based, hosted by us
and available, like all of our products, for an affordable monthly subscription.
Expert Agent is the estate agency software product of choice in nearly 1100 residential,
commercial and lettings businesses across the UK and Europe.
For more information about our
Estate Agent Software please click the link.