)/agencies/{305f7038-687b-4dd4-aac5-ba752f57399e}/{4f02d391-969f-436a-84e7-b4370bd2c1a3}/main/CGI-FRONT.jpg)
Outstanding opportunity for a prime residential Building Plot fronting onto Battlefield Lane, Wombourne at this sought after location, close to the centre of Wombourne Village.
The Plot has the benefit of Planning Consent granted on the 16th January 2026 – (South Staffordshire Council Planning Reference: 25/00603/FUL) for a single storey extension to existing Coach House to form new 4 Bedroom Detached Dwelling with associated parking and landscaping, subject to Conditions as set out in the Planning Decision Notice. Site address rear of 14 Battlefield Hill, Wombourne WV5 0JJ
The Vendor proposes to make the following Conditions of Sale:
1. Services, Drainage & Ground Conditions – No reports are available. It will be the responsibility of the Purchaser to make their own investigations.
2. Upon formal acceptance of an offer, the Purchaser will be required to Exchange Contracts within 8 weeks of receipt of Contract by their Solicitor/Legal advisor.
3. Following Exchange of Contracts, Legal Completion is to take place within a maximum of 14 days.
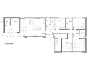
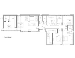
PLANS
Site plan and layout plan within this brochure are not to scale and are for identification purposes only and provided by kind permission of Quad Architects Limited. The proposed front elevation is CGI.
VIEWING
Strictly by appointment through The Lee, Shaw Partnership – Tel: 01384 287 622
GUIDANCE NOTES FOR OFFERS
All offers are to be submitted in writing for the attention of Andrew Jackson at The Lee, Shaw Partnership, Cross offices, Summerhill, Kingswinford DY6 9JE, Quoting Reference Number K8767/AMJ. Your offer should be submitted as a HIGHEST & FINAL FIGURE, detailing your position to proceed together with confirmation of your Proof of Funds for the purchase. A deadline for offers may be set.
TENURE The Building Plot will be sold Freehold.
Additional Note: The Vendor reserves the right not to accept the highest or any offer.
In accordance with The Money Laundering, Terrorist Financing and Transfer of Funds (Information on the Payer) Regulations 2017, we are legally required to carry out anti-money laundering (AML) checks on all individuals purchasing a property. In line with HMRC guidelines, our trusted partner, Coadjute, will securely manage these checks to include PEP and Sanctions checks, biometric ID verification and verification of the source of purchase funds, on our behalf. Once an offer is agreed, Coadjute will send a secure link for you to complete the biometric checks electronically. A non-refundable fee of £45 plus VAT will be charged (per individually named purchaser, including parties gifting deposits) for each AML check conducted, and Coadjute will handle the payment for this service. These (AML) checks must be completed before the property is marked as subject to contract and prior to issuing the memorandum of sale to the solicitors, to confirm the sale. Please contact the office if you have any questions in relation to this.