Towncourt Lane, Petts Wood, OrpingtonGuide Price £1,100,000
On MarketBrowne Estates - 020 8466 91016269
- 5 double bedrooms
- 4 bathrooms ( 3 en suite)
- Large kitchen/living room to rear
- Spacious sitting room
- Downstairs W.C.
- Parking to front
- Solar heating plus
- Garden to rear and side
- Close to Petts Wood shops and station
- Close to Crofton school
PRESENTLY UNDER CONSTRUCTION . BUY NOW AND CHOOSE FITTINGS Approximately 2,500 sq ft 5 double bedrooms 4 bathroom detached family home located within a few minutes walk of Petts Wood shops, station and Crofton school. Call Ian Browne for more details and viewing arrangements. EPC and Council Tax to be confirmed. (Left hand house on site).
Anticipated completion Autumn 2025.
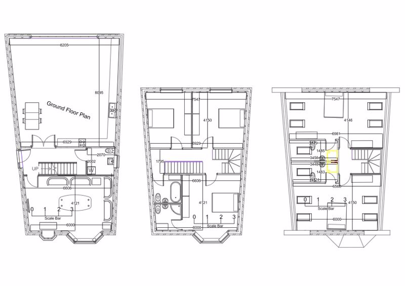
- Entrance Hall:
Spacious entrance hall with stairs to first floor:
- Open plan Kitchen,diner,family room:26' 11'' narrowing to 22'9" x 26' 7'' (8.205m narrowing to 6.929m x 8.095m)
Kitchen/ diner/ family room with bi fold doors to the rear garden.
Early buyer has choice of fittings
- Sitting room21' 8'' narrowing to 19'8" x 13' 6'' (6.606m narrowing to 6.000m x 4.121m)
A light and bright lounge with two double glazed bay windows to the front
- Downstairs W.C.:6' 9'' x 6568' 3'' (2.070m x 2002m)
Window to side.
- First floor landing:
- Bedroom 121' 8'' narrowing to 19'8" x 13' 6'' (6.606m narrowing to 6.000m x 4.121m)
Window to front and door to:
- En-suite shower room:
- Bedroom 212' 4'' narrowing to 11'4" x 13' 7'' (3.773m narrowing to 3.464m x 4.150m)
Window to rear.
- Bedroom312' 4'' narrowing to 11'4" x 13' 7'' (3.773m narrowing to 3.464m x 4.150m)
Window to rear
- Family bathroom:
- Landing and stairs to second floor:
- Bedroom 421' 7'' narrowing to 18'4" x 13' 7'' (6.586m narrowing to 6.000m x 4.150m)
Skylights
- En-suite bathroom:11' 4'' narrowing to 10'10" x 4' 10'' (3.448m narrowing to 3.324m x 1.483m)
Skylight
- Bedroom 524' 9'' narrowing to 22'10" x 13' 7'' (7.547m narrowing to 6.981m x 4.146m)
Skylights
- En-suite bathroom:11' 9'' narrowing to 11'4" x 4' 10'' (3.579m narrowing to 3.456 x 1.485m)
Skylight
- Rear Garden:
- Side garden
- Parking to front
Expert Agent supplies powerful web based estate agency software, estate agent web
site design and estate agent marketing systems. Our estate agent software is suitable
for both estate agents and letting agents. It is totally web based, hosted by us
and available, like all of our products, for an affordable monthly subscription.
Expert Agent is the estate agency software product of choice in nearly 1100 residential,
commercial and lettings businesses across the UK and Europe.
For more information about our
Estate Agent Software please click the link.