Robert Bell & Co - Lincoln
43 Silver Street
Lincoln
Linconshire
LN2 1EH
01522 538888
Development Site - Walesby Road, Market RasenGuide Price £675,000
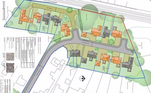
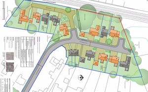
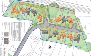
Main Image
Site plan- click for photo galleryMarked site location plan- click for photo gallerySelection of designs- click for photo galleryPhoto 1- click for photo galleryPhoto 5- click for photo galleryPhoto 6- click for photo galleryPhoto 7- click for photo galleryPhoto 8- click for photo galleryPhoto 9- click for photo galleryPhoto 10- click for photo galleryPhoto 11- click for photo galleryPhoto 12- click for photo galleryPhoto 13- click for photo galleryPhoto 14- click for photo galleryPhoto 15- click for photo galleryPhoto 16- click for photo galleryPhoto 20- click for photo gallerySite entrance- click for photo galleryPhoto 22- click for photo galleryPhoto 24- click for photo galleryPhoto 25- click for photo galleryPhoto 26- click for photo galleryPhoto 27- click for photo galleryPhoto 23- click for photo gallery
On MarketRobert Bell & Co - Lincoln - 01522 5388881000017866
NEW PRICE! An outstanding 2.76 acre (sts) residential development site, with consent for the construction of 15 high quality homes, located in very pleasant meadow land on the northern country fringe of the ever-popular Lincolnshire Wolds market town of Market Rasen. The site provides a wonderful mix of 3 – 5 bedroom detached home designs, with gross interior floor areas ranging from 1,571 ft2 / 146 m2 to 2,755 ft2 / 256 m2, set on well-proportioned plots, targeted to appeal to the family buyer. In conjunction with this there is a small terrace of 3 First Homes offering 2 bedroom accommodation with gross interior floor areas of 677 ft2 / 62 m2.

Additional Land Options
A planning application has been made for a single dwelling on the site of former outbuildings to the northern side of the site access road. The sellers are prepared to give due consideration to the sale of this property, on planning consent having been obtained, to the purchaser of the development.

The sellers are also prepared to consider selling an ‘option to purchase’ an additional 5.9 acres of land which can be identified as part of Land Registry parcel LL100377. Enquire with Agent for further information.

Planning Consultants
Fytche Taylor - Unit 5, The Quays, Burton Waters, Lincoln LN1 2XG. Email: info@ftplan.co.uk. 
Phone: 01522 581383.

Local Planning Authority
West Lindsey District Council: Guildhall Marshall’s Yard, Gainsborough, Lincolnshire, DN21 2NA. 
Tel: 01427 676676. Website: www.west-lindsey.gov.uk/.
Planning Reference: WL/2024/01040

THE AREA
Market Rasen – A thriving market town set on the western edge of the beautiful Lincolnshire Wolds, an Area of Outstanding Natural Beauty; offering the perfect balance of rural charm, modern convenience, and a strong sense of community — making it an ideal place to call home.

This attractive town has long been admired for its traditional market place, featuring a range of independent shops, cafés, and a weekly market, alongside national retailers including Tesco, Co-op, and Premier convenience store, with an Aldi supermarket coming shortly. Day-to-day needs are easily met, with a post office, pharmacy, medical centre, and a choice of pubs and eateries offering both casual and fine dining- see brochure for further details. 


 

 


Website Design and Estate Agency Software By Expert Agent
Expert Agent Estate Agency Software