Robert Bell & Co - Lincoln
43 Silver Street
Lincoln
Linconshire
LN2 1EH
01522 538888
DEVELOPMENT OPPORTUNITY - Planning Consent for three single storey dwellingGuide Price £270,000
Main Image
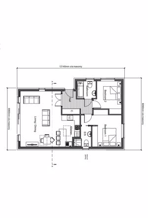
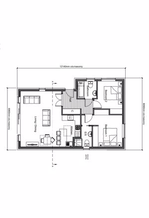
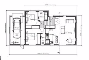
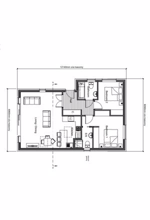
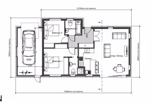
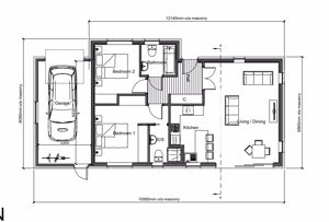
Site Layout Plan- click for photo galleryPlots 1 and 2 Elevations- click for photo galleryPlots 1 & 2 Floorplan- click for photo galleryPlot 3 Elevations- click for photo galleryPlot 3 Floorplan- click for photo gallerySite location- click for photo galleryArea map- click for photo galleryPhoto 9- click for photo galleryPhoto 10- click for photo galleryPhoto 11- click for photo gallery
On MarketRobert Bell & Co - Lincoln - 01522 5388881000017796
This is a marvellous development opportunity, for the creation of three high quality detached bungalows, set in an attractive exclusive setting on the north western country fringe of the ever-popular north Lincoln village of Welton. The very attractive bungalow designs (GIFA 831 ft2 / 77.21 m2) offer an appealing layout of accommodation with large feature Living Dining Kitchen, Master Bedrooms with En-suite Shower Room, a further Bedroom of excellent proportions and bathroom. The design of plot 3 includes garaging.

Welton is one of the most sought-after north Lincoln villages for families, as it offers an excellent range of local amenities which includes a post office/Co-op supermarket, public houses, golf club, primary school, the OFSTED Outstanding William Farr secondary school and yet more. The village is just 6 miles from the historic city of Lincoln with its very comprehensive range of shopping and social activities. There is quick and easy access out to the A15 and the Lincoln northern and eastern bypasses, with accompanying routes out to a number of RAF bases in the area, Sleaford and Grantham. Also, the nearby A46 runs out southwest of the city to the A1 and Newark with its high-speed rail link to London Kings Cross.

Planning Authority: West Lindsey District Council - Guildhall Marshall’s Yard, Marshalls Yard, 13b Beaumont St, Gainsborough DN21 2NA. Tel: 01427676676.                                                                             
Online Planning Portal: www.west-lindsey.gov.uk/planning-building-control/planning/view-search-planning-applications
Planning Application Reference: WL/2024/00485.
 

Website Design and Estate Agency Software By Expert Agent
Expert Agent Estate Agency Software