Robert Bell & Co - Lincoln
43 Silver Street
Lincoln
Linconshire
LN2 1EH
01522 538888
Development Opportunity, High Street, WaddinghamGuide Price £400,000
Main Image
Site plan- click for photo galleryFront property insitu - CGI site- click for photo galleryCGI of site- click for photo galleryThe Dunholme - front- click for photo galleryThe Dunholme rear- click for photo galleryThe Dunholme- click for photo galleryThe Granby -front- click for photo galleryThe Granby GF - click for photo galleryThe Nettleham  -front- click for photo galleryThe Nettleham-rear- click for photo galleryThe Nettleham- click for photo galleryThe Saxilby - front- click for photo galleryThe Saxilby -rear- click for photo galleryThe Saxilby- click for photo galleryThe Welton - front- click for photo galleryThe Welton -rear- click for photo galleryThe Welton- click for photo galleryArea plan- click for photo gallery
Sold STCRobert Bell & Co - Lincoln - 01522 5388881000017484
Granby Gardens Development Site High Street Waddingham DN21 4SW

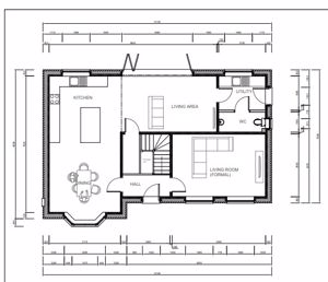
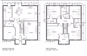
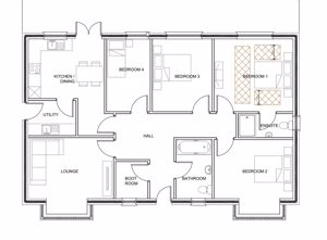
An outstanding development opportunity in the heart of the charming village of Waddingham - An exclusive setting for seven high quality homes.
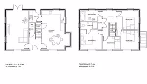
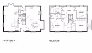
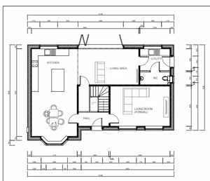
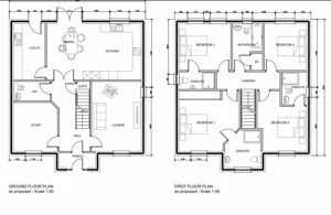
The planning consent comprises of five detached houses and two detached bungalows. Consent was determined on the 5/1/2023.

This may be viewed as ‘a ready to go’ development opportunity, with full information disclosure of drawings and schematics by the seller. For marketing, full CGI design work for the site and each individual home also available.
 

Website Design and Estate Agency Software By Expert Agent
Expert Agent Estate Agency Software