Robert Bell & Co - Lincoln
43 Silver Street
Lincoln
Linconshire
LN2 1EH
01522 538888
Wainfleet Road, SkegnessMonthly Rental Of £750
Main Image
Front- click for photo galleryFloor plan- click for photo galleryKitchen- click for photo galleryLounge- click for photo galleryBedroom- click for photo galleryBedroom- click for photo galleryBathroom- click for photo galleryFront garden- click for photo gallery
Available to LetRobert Bell & Co - Lincoln - 01522 538888BH00018250
This SEMI-DETACHED HOUSE with two parking spaces is located on the corner of Wainfleet Road, and Burlington Road, and is within a short walk to the centre of Skegness which has a mix of retail, commercial, and leisure facilities.

The property has been completed to a high specification has two double bedrooms, central heating, and some outside space. The property is available Unfurnished.

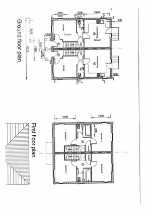
The accommodation comprises:

GROUND FLOOR: LOUNGE facing the front garden, with stairs rising to the First Floor; CLOAKROOM having low level w.c., and hand wash basin; DINING KITCHEN with new eye and base level units, hob, cooker, and extractor, single drainer stainless steel sink unit.
FIRST FLOOR: LANDING with large cupboard; TWO DOUBLE BEDROOMS with t.v. points, one bedroom having a built-in wardrobe; FAMILY BATHROOM having panel bath with shower over, hand wash basin, and low level w.c.
OUTSIDE: With gardens, and one parking space.

STRICTLY NO PETS NO SMOKERS

"Lettings Fees:- There are no application or referencing fees payable. More information on charges to Tenants including Alterations to Tenancy Agreement, Defaults, Breaches and Utilities can be found on our downloads on our website, www.robert-bell.org, and copies are displayed in our offices and can be provided on request."


For Tenancy Agreements commencing 1st June 2019

1) Move - In Costs: - A security deposit of no more than five weeks rent is due at the start of the tenancy. (For annual rents below £50,000). (Holding Deposits - (A maximum of one weeks rent) can be charged as a permitted payment under the Act. We won't generally offer this option unless unusual circumstances occur and the relevant Landlord and Tenant agree to this. At such time all time lines required by the Tenant Fees Act would be followed and details of these will be provided in advance to all parties involved).

2) Alterations to Tenancy Agreement: - £50 will be charged where an amendment to the Tenancy Agreement is required either at the tenants' request, or where actions of the tenant make a change necessary.  These include, but are not limited to: - Request to keep pets (subject to consent from the Landlord). Addition or removal of permitted occupiers. Requests to alter terms of the tenancy agreement.

3) Defaults:- Unpaid Rent: - Where rent has been outstanding for 14 days, interest of 3% above the Bank of England base rate will be charged until rent is paid in full. Lost Keys: - Tenants will be responsible for the replacement of lost keys at the evidenced cost of replacement.

4) Breaches:-Tenants will be responsible for repayment of all costs incurred by the Landlord in respect of a breach of the tenancy agreement.

Other:-Tenants will be responsible for utilities, communication services (e.g. telephone, broadband), TV licence and Council Tax unless otherwise stated on a specific properties detail sheet. Together with any other permitted payments under the Tenant Fees Act 2019.
Please note all the above fees are not refundable and are inclusive of VAT.

Robert Bell & Company are members of the RICS Client Money Protection Scheme (RICS Firm Reference 000550) and Property Redress Scheme (Membership Number PRS012682), certificates are displayed on our website and in our offices. Copies of these can be provided to you on request. For Further information please speak to a member of our Residential Letting Team at our Horncastle or Lincoln Offices.
 
Website Design and Estate Agency Software By Expert Agent
Expert Agent Estate Agency Software