Robert Bell & Co - Lincoln
43 Silver Street
Lincoln
Linconshire
LN2 1EH
01522 538888
10 Anzio Close, LincolnGuide Price £210,000
Main Image
Main elevation- click for photo galleryFrontage- click for photo galleryRear garden- click for photo galleryRear garden- click for photo galleryPhoto 29- click for photo galleryPhoto 28- click for photo galleryPhoto 26- click for photo galleryPhoto 25- click for photo galleryStaircase- click for photo galleryPhoto 34- click for photo galleryPhoto 31- click for photo galleryPhoto 30- click for photo galleryPhoto 32- click for photo galleryPhoto 33- click for photo galleryFront garden- click for photo gallerySide elevation- click for photo galleryLand to the rear- click for photo galleryPhoto 36- click for photo galleryDrawings for potential dwelling- click for photo gallerySite plans- click for photo galleryPhoto 37- click for photo gallery
On MarketRobert Bell & Co - Lincoln - 01522 5388881000017865
NO ONWARD CHAIN! 10 Anzio Close is a two bedroom property positioned at the end of the row, next to the local school and Yarborough leisure centre. Accommodation comprises; hall, galley kitchen, living room, There is designated off-street parking with space for up to two cars, a brick-built storage outbuilding (formerly a coal shed) linked to the left side with convenient side access into the kitchen. The property benefits from a generous south-facing rear garden.

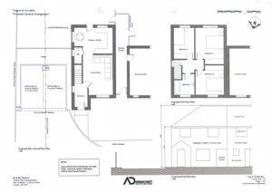
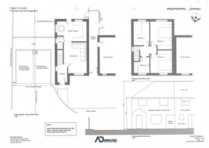
Unique development proposal with Outline Planning Consent for construction of adjoining three bedroom end of terrace house.
City of Lincoln Council - Application no. 2024/0435/OUT






Website Design and Estate Agency Software By Expert Agent
Expert Agent Estate Agency Software