Robert Bell & Co - Lincoln
43 Silver Street
Lincoln
Linconshire
LN2 1EH
01522 538888
Development Opportunity, Manor Farm, Spalford, NewarkGuide Price £425,000
Main Image
Photo 3- click for photo galleryPhoto 4- click for photo galleryPhoto 7- click for photo galleryPhoto 11- click for photo galleryPhoto 9- click for photo galleryPhoto 12- click for photo galleryPhoto 13- click for photo galleryPhoto 1- click for photo galleryPhoto 5- click for photo galleryPhoto 6- click for photo galleryPhoto 8- click for photo galleryPhoto 10- click for photo galleryPhoto 2- click for photo gallery
On MarketRobert Bell & Co - Lincoln - 01522 5388881000017931
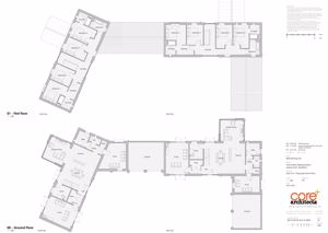
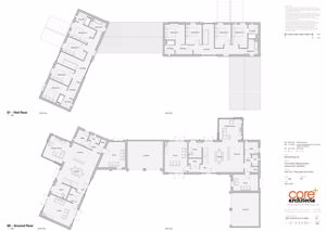
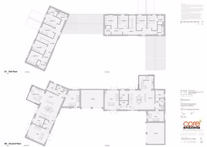
This is an outstanding Village & Country development opportunity for five high quality neo-contemporary barn style family residences, of some considerable distinction, which will form part of an eye-catching redevelopment of the Manor Farm farmyard complex in the heart of the small Trent Valley Village of Spalford.

The consent provides for the following:

Plot 1 – 3 Bed House 1,679 ft2 / 156 m2 excluding garaging.
Plot 2 – 3 Bed House 1,722 ft2 / 160 m2 excluding garaging.
Plot 3 – 3 Bed House 1,679 ft2 / 156 m2 excluding garaging.
Plot 4 – 4 Bed House 2,023 ft2 / 188 m2 excluding garaging.
Plot 5 – 4 Bed House 2,023 ft2 / 188 m2 excluding garaging.

The houses will form part of an exclusive private enclave of homes, where there is also planning consent for two stunning and very substantial barn conversions; Barn 1 GIFA 2,960 ft2 / 274 m2 and Barn 2 GIFA 2,626 ft2 / 243 m2. The barns are also available for purchase individually or together in conjunction with the main site. Please request for further details.

Planning Reference: 25/00222/FULL - Approved
Local Planning Authority: Newark & Sherwood District Council ,Castle House, Great N Rd, Newark NG24 1BY.
Website: www.newarksherwooddc.gov.uk/viewcommentplanningapplication/
Phone: 01636 650000

Planning Consultants: Fytche Taylor Unit 5, The Quays, Burton Waters, Lincoln LN1 2XEmail: info@ftplan.co.uk Phone: 01522 581383



Website Design and Estate Agency Software By Expert Agent
Expert Agent Estate Agency Software