Plot at Albany Street, High Street, Gloucester, GL1 4SP£75,000
On Marketde Mel Property - 01242 472555DM2655
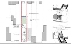
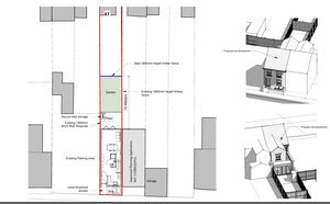
- Planning Application Number 24/00810/FUL
- Permission Granted for Two Bedroom Detached House
***BUILDING PLOT WITH PLANNING PERMISSION***
This plot of land was previously the garden for a property on High Street.
Facing Albany Street, planning is granted for a contemporary, two bedroom detached dwelling with parking and garden.
Call de Mel Property for further information.
Expert Agent supplies powerful web based estate agency software, estate agent web
site design and estate agent marketing systems. Our estate agent software is suitable
for both estate agents and letting agents. It is totally web based, hosted by us
and available, like all of our products, for an affordable monthly subscription.
Expert Agent is the estate agency software product of choice in nearly 1100 residential,
commercial and lettings businesses across the UK and Europe.
For more information about our
Estate Agent Software please click the link.