)/agencies/{1a97f41b-0425-4e5b-892f-aca23b30db9b}/{d6cc80b5-42f5-43ac-96ec-390a873be853}/main/MAP.jpg)
GetAnOffer are offering this PROPERTY from a MOTIVATED seller to buyers that are in a position to purchase relatively quickly. Please enquire to GetAnOffer on how to secure this property QUICKLY.
GetAnOffer are pleased to offer this property for sale:
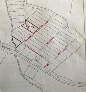
Plot 43: 0.18 acres 728sq.m
16m x 60m x 14m x 51.5m
Plot 44: 0.17 acres 687sq.m
14m x 51.5m x 15.5m 55.5m
EARLY VIEWING IS HIGHLY RECOMMENDED DUE TO THE PROPERTY BEING PRICED FOR A QUICK SALE.
*** FOR FURTHER INFORMATION PLEASE CALL: 01903 331031 ***
Please Note:
(Under the terms of The Estate Agent Act 1979 it is hereby advised that Future Planned Relocation Services Ltd (Get An Offer) has a legal interest in this property or is a close associate of the seller.)
Images may be subject to photographic enhancements and staging for marketing purposes.
All details and measurements have been given for guidance purposes only. Due to the nature of our business our details are usually produced by a third party so any information supplied should be checked by yourself for any inaccuracies.
Although this property may have the facility of heating and other appliances they have not been tested at the time of our instructions.
Get an Offer makes no guarantees as to the accuracy within these property details.
By making an enquiry on this property you acknowledge that this property is strictly offers in excess of the marketing price provided. The market appraisal of this property has indicated a value in excess of our marketing price. As a consequence, and similar to any other vendor, the vendor is aiming to achieve as much as possible in excess of this marketing price provided.
Images may be subject to photographic enhancements and staging for marketing purposes.