Development Opportunity at 29 Dock View Road, Barry, The Vale of Glamorgan CF63 4JF£50,000
On MarketHerbert R Thomas - Cowbridge - 01446 772911HRT16078
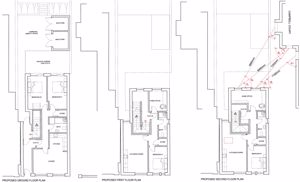
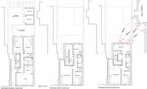
- Residential development site with full planning permission to construct three apartments
- Ground floor apartment including living room with open-plan kitchen, two double bedrooms, shower and private garden
- First and second floor apartments including open plan lounge and kitchen, double bedroom, study and shower room, shared communal space, bin and bike stores
- Central location with walking access to retail centre, leisure centre and train station
- Ideal for commuters into Cardiff via road and rail
Full planning permission has been granted, application number 2025/00370/FUL for a residential development made up of three apartments at 29 Dock View Road, Barry. The planning consent, approved on 3rd of November 2025 is subject to a list of 13 conditions - details of which are available on request.
Barry enjoys excellent access – road (M4 J33), rail (via the Vale of Glamorgan line links/Barry Docks station) and proximity to Cardiff and Cardiff Airport, making it appealing for commuters. The neighbourhood is evolving from industrial use to mixed-use living. There are independent retail and leisure offerings around the Goodsheds redevelopment nearby, and the coastline/beach front is accessible.
Consent is for an interesting, industrial style, brick faced three storey building which would provide:
Ground Floor Apartment
Accessed from a shared hallway with a front lounge with open plan kitchen, two bedrooms and a bathroom. Together with direct access to it's own private garden.
Apartment Two
Occupies the first floor space and includes a living room with open-plan kitchen, double bedroom, shower room and home office.
Second Floor Apartment
Providing mirrored accommodation which includes living room with kitchen, double bedroom, shower room and a large home office with aspect to rear. First and second floor accommodation shares a communal amenities space with ground floor bin and bike stores to be provided, shared by all three apartments.
An ideal development opportunity for resale, or adding value to an existing rental portfolio.
Expert Agent supplies powerful web based estate agency software, estate agent web
site design and estate agent marketing systems. Our estate agent software is suitable
for both estate agents and letting agents. It is totally web based, hosted by us
and available, like all of our products, for an affordable monthly subscription.
Expert Agent is the estate agency software product of choice in nearly 1100 residential,
commercial and lettings businesses across the UK and Europe.
For more information about our
Estate Agent Software please click the link.