Adamsons Barton Kendal
122 Yorkshire Street
Rochdale
Lancashire
OL16 1LA
01706 653214
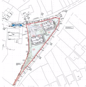
Land adjacent to 4 Rudman Street Offers in Excess of £100,000 for the whole plot or £70,000 for an individual plot
Main Image
Photo 9- click for photo galleryPhoto 11- click for photo galleryPhoto 13- click for photo galleryPhoto 14- click for photo galleryPhoto 15- click for photo galleryPhoto 16- click for photo galleryPhoto 17- click for photo galleryPhoto 18- click for photo galleryPhoto 6- click for photo galleryPhoto 5- click for photo galleryPhoto 4- click for photo galleryPhoto 3- click for photo galleryPhoto 2- click for photo galleryPhoto 1- click for photo galleryPhoto 7- click for photo galleryPhoto 8- click for photo gallery
On MarketAdamsons Barton Kendal - 01706 65321400008974
ADAMSONS BARTON KENDAL are delighted to offer for sale this fabulous plot of land, with planning permission for 2 luxury detached houses, on an irregular shaped site off Rudman Street.  The properties to be built are three storey with a hallway, vanity room and gym / reception room with a double garage at lower ground floor level and to the first floor, there is an open plan kitchen and living/dining area with a bathroom and bedroom, enjoying the stunning views.  To the upper floor, there are 2 further bedrooms with en-suite shower rooms, together with a study. The plot of land is located within walking distance of Healey Dell Nature Reserve and Shawclough Village and enjoys stunning panoramic views.  

FULL PLANNING DETAILS can be viewed on the Rochdale Metropolitan Borough Council’s website.    Application No 23-01090-FUL


Website Design and Estate Agency Software By Expert Agent
Expert Agent Estate Agency Software